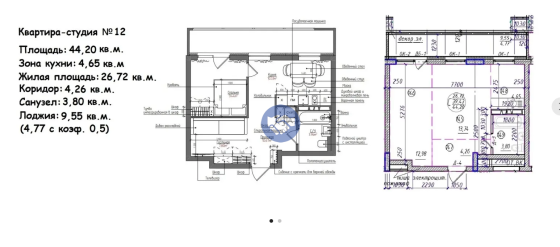
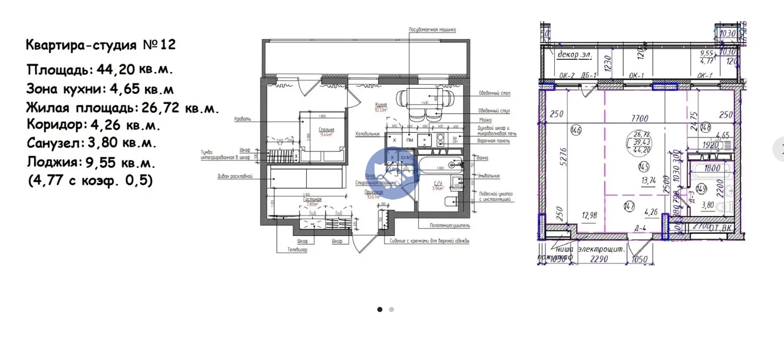
Продается 2-х комн. квартира, 44.5 кв.м., 4/12 эт
Обзор№ - 26
| Стоимость | 8 400 000 |
|---|---|
| Ремонт | Требует ремонта |
| Балкон | Лоджия |
| Доля в квартире | Нет |
| Онлайн показ | могу провести |
| Статус Недвижимости Авито | Квартира |
| Право собственности | Посредник |
| Тип парковки | За шлагбаумом во дворе |
| Способ связи avito | По телефону |
| Тип дома cian | Монолитный |
| Комнат в квартире | 2 |
| Площадь, кв.м. | 44.5 |
| Жилая площадь | 26.72 |
| Площадь кухни, кв.м. | 4.65 |
| Этаж | 4 |
| Этажность | 12 |
| Материал стен | Монолитный |
Адрес
| Населенный пункт | Горно-Алтайск |
|---|---|
| Район города | кирзавод |
| Улица | проспект Коммунистический |
В избранное Квартира в Новостройке
Продам квартиру в новом строящемся доме в г.Горно-Алтайске, квартира в черновом варианте, дом монолитный с заполнением красным кирпичем, удобный двор, парковка и детская площадка, шикарный вид на город. Есть возможность приобретения в ипотеку, семейная под 5% годовых. Звоните, узнавайте подробную ситуацию по телефону. Подробная планировка есть в фото.













